* Modeljaar: het modeljaar van de camper komt niet altijd overeen met het bouwjaar. Het zal veelal voorkomen dat een camper bijvoorbeeld al in het voorgaande jaar is gebouwd.
Four Seasons
ROF Fleet C-Class
| Klasse | Beter |
|---|---|
| Modeljaar | Vanaf 2022* |
| Type camper | Class-C Camper |
| Personen | 4 |
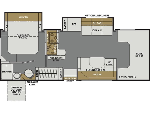
Indelingen
Campereigenschappen/-specificaties
Afmetingen
| Lengte: | 6,70 - 8,36 meter |
|---|---|
| Breedte: | 2,54 meter |
| Hoogte: | 3,40 meter |
| Hoogte binnen: | 2,10 meter |
| Aantal stoelriemen: | 4 |
| Aanbevolen maximale bezetting: | 3 volwassenen / 1 kinderen |
| Bed in cabover (lengte x breedte): | 1 x 2 centimeter |
| Bed-dinette (lengte x breedte): | 1 x 1 centimeter |
| Bedbank (lengte x breedte): | |
| Bed achterin de camper (lengte x breedte): | 1 x 1 centimeter |
| Stapelbed (lengte x breedte): |
Luxe
| Achteruitrijcamera | |
|---|---|
| Airconditioning | |
| Ingebouwd navigatiesysteem | |
| Kluisje | |
| Safety Net in Cabover bed | |
| Slide-out systeem | |
| Televisie | |
| USB aansluiting | |
| Zonnescherm |
Technisch
| Soort motor | Benzine |
|---|---|
| Inhoud brandstoftank | 208 liter |
| Benzinemotor | |
| Cruise control | |
| Dieselmotor | |
| Generator | |
| Rembekrachtiging | |
| Stuurbekrachtiging | |
| Verwarming | |
| Vierwielaandrijving | |
| Zonnepaneel voor het opwekken van elektriciteit |
Sanitair
| Drinkwatertank | 150 liter |
|---|---|
| Afvalwatertank (grijs) | 95 liter |
| Afvalwatertank (zwart) | 90 liter |
| Warmwatervoorziening | |
| Buitendouche | |
| Douche | |
| Toilet |
Keuken
| Koelkast | |
|---|---|
| Magnetron | |
| Magnetronoven | |
| Oven | |
| Vriezer |
Alle informatie vermeld op deze pagina is onder voorbehoud van wijzigingen en kan in de praktijk afwijken. De bovenstaande afbeeldingen zijn bedoeld om u een indicatie te geven van de indeling van de camper. Doets Reizen streeft ernaar om de informatie op deze pagina’s up-to-date te houden, maar is niet aansprakelijk voor afwijkingen of tussentijdse wijzigingen door de camperverhuurder.
Populaire camperreizen
-
ivanaf3.672,-26 dagenWest-Canada Classic Explorer
- Campervakantie met unieke Grizzly Safari!
- Hotels, campings en excursies zijn inclusief
- Reis per camper over de Icefields Parkway
-
ivanaf2.907,-21 dagenHighlights van West Canada vanuit Vancouver
- Ontdek West Canada vanuit Vancouver
- Hotels, campings en excursies zijn inclusief
- Rijden door de machtige Canadian Rockies
-
Prijs op aanvraag18 dagenYukon Adventure
- Ervaar de ultieme wildernis
- Ontdek de prachtige natuur van Yukon
- Met een stoere Truck Camper
-
ivanaf2.927,-21 dagenHighlights van West-Canada vanuit Calgary
- Fraserway RV camper incl. alle extra's
- Verblijf op campings in of nabij Nationale Parken
- Inclusief 4 unieke excursies
-
Prijs op aanvraag15 dagenHighlights van Vancouver Island
- Doets Deep Desires
- Inclusief hotels, camper en campings
- Grote kans op het zien van wildlife
-
Stel je eigen camperreis samen.








