* Modeljaar: het modeljaar van de camper komt niet altijd overeen met het bouwjaar. Het zal veelal voorkomen dat een camper bijvoorbeeld al in het voorgaande jaar is gebouwd.
GoNorth
Motorhome MC4 19-21ft - GOLD
| Klasse | Best |
|---|---|
| Modeljaar | Vanaf 2024* |
| Type camper | Class-C Camper |
| Personen | 4 |
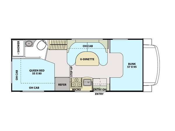
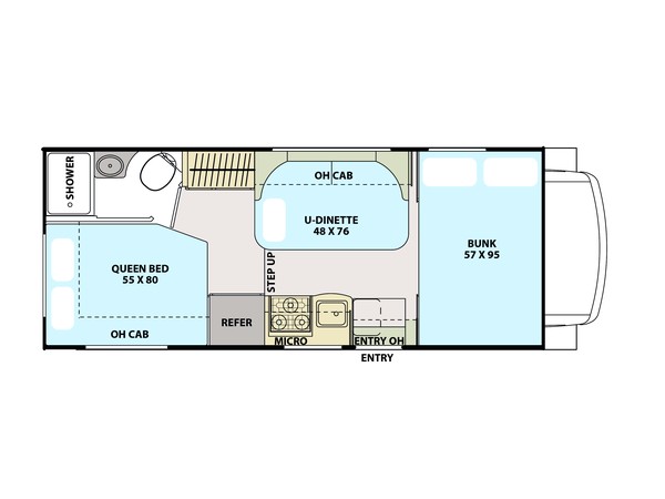
Indelingen
Campereigenschappen/-specificaties
Afmetingen
| Lengte: | 6,70 - 7,40 meter |
|---|---|
| Breedte: | 3,10 meter |
| Hoogte: | 3,30 meter |
| Hoogte binnen: | 2,11 meter |
| Aantal stoelriemen: | 5 |
| Aanbevolen maximale bezetting: | 2 volwassenen / 2 kinderen |
| Bed in cabover (lengte x breedte): | 241 x 144 centimeter |
| Bed-dinette (lengte x breedte): | |
| Bedbank (lengte x breedte): | |
| Bed achterin de camper (lengte x breedte): | 203 x 139 centimeter |
| Stapelbed (lengte x breedte): |
Luxe
| Achteruitrijcamera | |
|---|---|
| Airconditioning | |
| Ingebouwd navigatiesysteem | |
| Kluisje | |
| Safety Net in Cabover bed | |
| Slide-out systeem | |
| Televisie | |
| USB aansluiting | |
| Zonnescherm |
Technisch
| Soort motor | Benzine |
|---|---|
| Inhoud brandstoftank | 135 liter |
| Benzinemotor | |
| Cruise control | |
| Dieselmotor | |
| Generator | |
| Rembekrachtiging | |
| Stuurbekrachtiging | |
| Verwarming | |
| Vierwielaandrijving | |
| Zonnepaneel voor het opwekken van elektriciteit |
Sanitair
| Drinkwatertank | 190 liter |
|---|---|
| Afvalwatertank (grijs) | 75 liter |
| Afvalwatertank (zwart) | 75 liter |
| Warmwatervoorziening | |
| Buitendouche | |
| Douche | |
| Toilet |
Keuken
| Koelkast | |
|---|---|
| Magnetron | |
| Magnetronoven | |
| Oven | |
| Vriezer |
Alle informatie vermeld op deze pagina is onder voorbehoud van wijzigingen en kan in de praktijk afwijken. De bovenstaande afbeeldingen zijn bedoeld om u een indicatie te geven van de indeling van de camper. Doets Reizen streeft ernaar om de informatie op deze pagina’s up-to-date te houden, maar is niet aansprakelijk voor afwijkingen of tussentijdse wijzigingen door de camperverhuurder.
Populaire camperreizen
-
ivanaf3.153,-22 dagenCampingTrip Tropical Florida
- Complete camperreis door Florida
- Inclusief 3 excursies, hotel, camper en campings
- Breid je reis uit met extra excursies
-
ivanaf3.787,-23 dagenCampingTrip Gouden Staten vanuit San Francisco
- Inclusief een overnachting op een Ranch!
- Ontdek California, Arizona en Nevada
- Inclusief camper en campingovernachtingen
-
ivanaf3.004,-20 dagenCamperreis Gouden Staten in de wintermaanden
- Inclusief overnachtingen
- Ontdek California, Arizona en Nevada
- Ontdek Zuidwest Amerika in de winter
-
ivanaf3.592,-25 dagenCampingTrip Rockies & Yellowstone vanuit Denver
- Camperreis naar de Amerikaanse Rockies
- Bezoek Yellowstone National Park
- Inclusief 2 excursies
-
Prijs op aanvraag18 dagenYukon Adventure
- Ervaar de ultieme wildernis
- Ontdek de prachtige natuur van Yukon
- Met een stoere Truck Camper
-
Stel je eigen camperreis samen.








